п. Залесье, ул. Заречная левая, д.1
15 000 000 ₽
Объект № S-541
| Тип сделки: | Продажа |
| Тип недвижимости: | Жилая, Дом |
| Этаж: | -/2 |
| Площадь: | 148 м2 |
| Площадь участка: | 9 сот |
| Материал дома: | Блоки |
| Ремонт: | В отличном состоянии |
| Санузел: | Несколько |
Описание
Продаётся двухэтажный жилой коттедж с современным ремонтом, просторной кухней гостиной в г. Верхняя Пышма, п. Залесье, ул. Заречная Левая, д. 1 . В доме есть и остается вся необходимая мебель и техника, заезжай и живи.
Ухоженный, сухой участок площадью 8,77 соток.
Также на участке есть баня размером 6*4, место релакса с вместительной парилкой, отдельной душевой и с уютной комнатой отдыха 4*4. Хозблок 6*5 для инструментов и всего.
Удобный въезд с асфальтированной дороги, ворота с раздвижным механизмом.
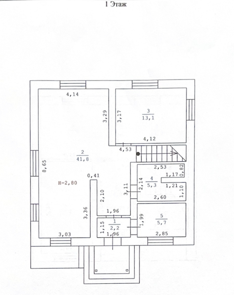
Пространство дома тщательно спланировано и имеет два этажа:
Первый этаж включает в себя удобную прихожую с гардеробной зоной. Просторную гостевую зону с кухней-гостиной, жилая комната. Здесь также есть просторный санузел с душевой. Вход в котельную из прихожей.
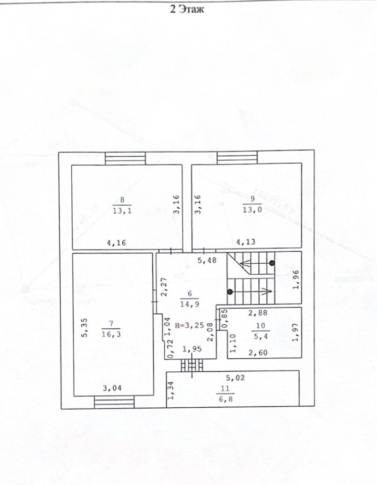
Второй этаж имеет три спальни, просторный хол, и также ванную комнату, балкон с видом на участок.
Коттедж из пеноблока 300 мм. Утеплитель 100 мм, фасад становые панели.
Газ, септик переливной 3 колодца, электричество 220, скважина 30м.
Коттедж полностью готов к проживанию. Строили для себя по индивидуальному проекту, выполнен из высококачественных и надежных материалов.
Место где живешь за городом, и до Екатеринбурга 10 км.
Школьный автобус забирает детей у магазина Магнит он рядом, и отвозит в 25 школу.
Один взрослый собственник, обременений нет.
Всегда рады показать в удобное для вас время, звоните)
Также на участке есть баня размером 6*4, место релакса с вместительной парилкой, отдельной душевой и с уютной комнатой отдыха 4*4. Хозблок 6*5 для инструментов и всего.
Удобный въезд с асфальтированной дороги, ворота с раздвижным механизмом.
Пространство дома тщательно спланировано и имеет два этажа:
Первый этаж включает в себя удобную прихожую с гардеробной зоной. Просторную гостевую зону с кухней-гостиной, жилая комната. Здесь также есть просторный санузел с душевой. Вход в котельную из прихожей.
Второй этаж имеет три спальни, просторный хол, и также ванную комнату, балкон с видом на участок.
Коттедж из пеноблока 300 мм. Утеплитель 100 мм, фасад становые панели.
Газ, септик переливной 3 колодца, электричество 220, скважина 30м.
Коттедж полностью готов к проживанию. Строили для себя по индивидуальному проекту, выполнен из высококачественных и надежных материалов.
Место где живешь за городом, и до Екатеринбурга 10 км.
Школьный автобус забирает детей у магазина Магнит он рядом, и отвозит в 25 школу.
Один взрослый собственник, обременений нет.
Всегда рады показать в удобное для вас время, звоните)
Фотографии объекта
Расположение на карте